福建大劇院建筑聲學裝飾設計案例分享
文章出處: 人氣:發表時間:2017-04-25 12:15
1.福建大劇院聲學指標的確定
劇院觀眾廳的聲學指標是參考國內外的經驗、結合國情,并經業主組織各方專家研究討論認定,各項指標為:
(1) 混響時間。綜合福建大劇院各項用途,最終確定劇院混響時間在中頻(500Hz)為(1.4±0.1)s,使用音樂反射罩,廳內混響時間增加0.2s左右?;祉憰r間頻率特性中高頻曲線平直,低頻相對于中頻提升1.2倍。
(2) 聲場不均勻度。觀眾廳內聲場不均勻度(ΔLp)在125~4000Hz頻率范圍滿足ΔLp≤8dB要求。
(3) 噪聲級。觀眾廳背景噪聲滿足NR20指標要求。

2.聲學設計概要
3.1 體型設計
對于自然聲演出的歌劇院來說,體形設計至關重要,它要解決響度(音量)、聲場分布、聲擴散、早期反射聲的分布和消除音質缺陷等問題。
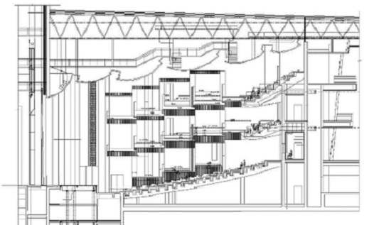
福建大劇院大劇場平面、剖面圖分別如圖一、圖二所示。

圖一:福建大劇院觀眾廳池座平面圖

圖二:福建大劇院觀眾廳剖面圖
大劇院的室內設計階段,中國建筑設計院室內所承擔裝修設計工作,在設計中采用傳統的設計手法,大劇院吊頂采用跌落式弧形吊頂方式。此種設計手法能夠根據聲學反射要求將舞臺的聲能均勻的反射到觀眾席,吊頂距離地面最高高度達到15.5m,整體空間感較好,在臺口外側的弧形反射板吊頂根據1/10縮尺模型測定結果確定,能夠保證觀眾席前區得到足夠的反射聲。
3.觀眾廳聲學設計和室內各界面材料控制
根據大劇院觀眾廳的混響時間要求,在聲學設計初期,根據清華大學建筑物理實驗室的大量試驗數據對室內裝修中使用材料和構造的聲學特性進行分析,選擇合適的試驗數據進行混響時間計算。
觀眾廳兩側墻面采用輕鋼龍骨20mm厚紙面石膏板墻,表面粘貼18mm厚木條裝飾板。為減小材料的低頻吸聲特性,要求安裝過程中,增加龍骨密度,以增強板材的剛度。在臺口兩側的八字墻部分采用裝飾石材密縫拼貼。該做法有兩個用途,起到裝飾美觀的效果,同時能夠減小低頻吸收。

觀眾廳后墻使用吸聲構造,一是控制廳內混響時間,二是防止舞臺發出的聲音從觀眾廳后墻反射回前排觀眾席和舞臺,形成回聲或擴聲系統的反饋嘯叫。
觀眾廳內座椅吸聲占有最大的比例,因此座椅的選擇尤其重要。在混響時間計算中,根據以往座椅吸聲量測試數據,進行預估設計。當劇院觀眾廳裝修基本完成后,對觀眾廳進行混響時間測試,根據測試結果調整座椅吸聲量,達到控制觀眾廳混響時間目的。


4.建筑聲學設計需要各方協調配合
設計中,首先要使甲方理解聲學設計的重要性和設計原理的基礎,爭取得到甲方對設計的支持。在工程中必須與建筑師和室內設計師及空調工程師、音響工程師等相互配合,把聲學設計融入建筑的體形設計和室內裝修設計中,把聲學功能和藝術創作有機地結合為一體,力爭聲學工程中沒有聲學痕跡。
佛山聲泰專業的劇院聲學材料生產服務商,國內所完工的標志性劇場項目有:萬達(南昌)文化旅游城瓷都劇院 萬達(合肥)蝶夢劇院 生產、設計、銷售、施工為有需求的客戶提供一條龍的整套服務

佛山聲泰吸音板廠家微信公眾平臺





