音樂圖書館的聲學裝修設計
文章出處: 人氣:發表時間:2017-02-17 14:58

音樂圖書館室內效果圖
音樂圖書館的音質設計(佛山聲泰)
音樂圖書館中,視聽室、聽音室和音樂教室的房間面積都為100 平方米~200 平方米左右,從聲學設計上來說,都屬于“小房間”之列。小房間的最大問題之一,就是低頻段可能由于駐波引起房間共振的現象,如果不加以適當控制,就會引起低頻聲染色的問題。所謂低頻聲染色,又叫低頻嗡聲,是在小房間中由于低頻共振頻率的“簡并”,引起某一頻率被大大加強,引起聲源的固有音色失真的現象。這會嚴重影響房間內的音質效果。因此,為了防止低頻共振的產生,其音質設計的主要原則是選擇適當的容積和形狀,房間的容積不宜過小。同時,房間的尺寸比例要適當。另外,還要采取適當的吸聲及擴散處理,以達到所要求的混響時間及其頻率特性,并保證有充分的擴散。


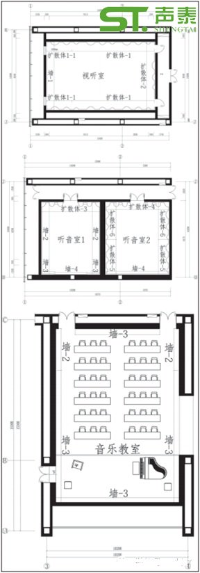
音樂圖書館的聲學標準測試圖:

國內十強吸音板品牌廠家之一:佛山聲泰建筑材料有限公司









